Descriere
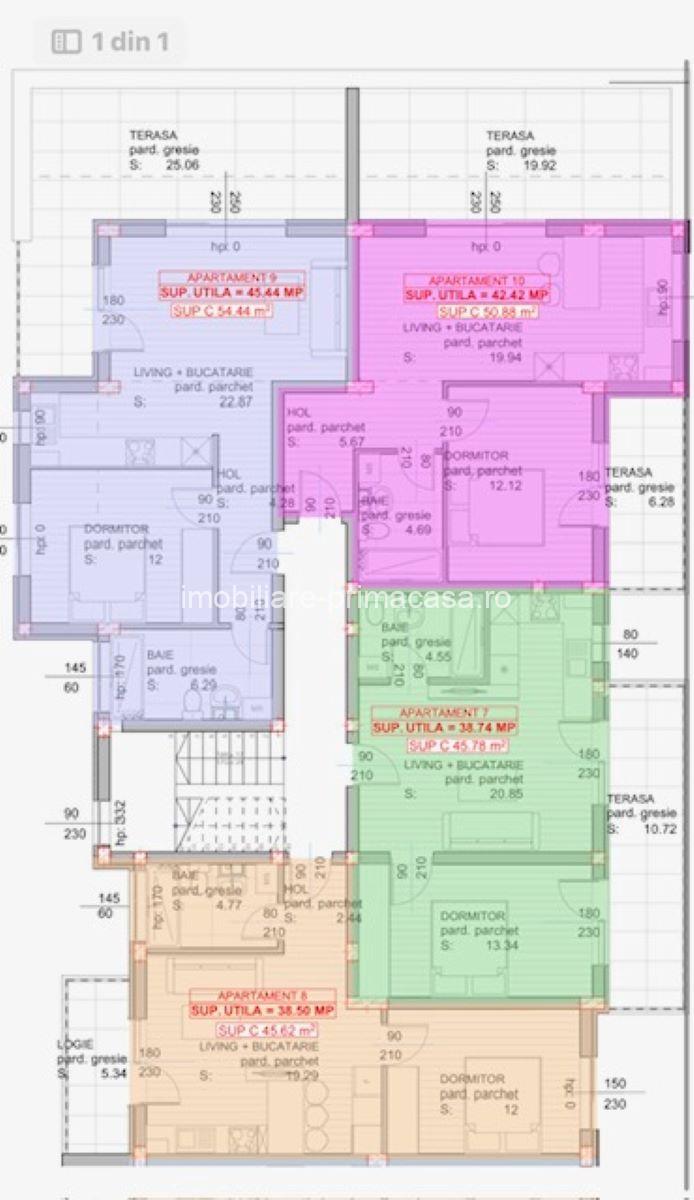
Agentia Imobiliara PrimaCasa va ofera spre vanzare apartamente dintr-un complex de blocuri noi P+3 etaje cu 3 corpuri diferite in zona Centrului Vechi(Pompieri) cu locuri de parcare(4000euro), loc de joaca pt copii si barbeque, curte imprejmuita, acces privat cu bariera.
Apartamentele sunt cu 2 si 3 camere de diferite suprafete iar pretul este de 1400euro/mpc +TVA (suprafata contruita) cu tot cu terase !
Proiectul se prezinta de catre agent la fata locului iar discutiile finale se vot face direct cu dezvoltatorul!
Termen de finalizare maxim 2026 MAI
























Recenzii
Nu există recenzii până acum.